產品名稱:直行程電動執行器[ 2020-06-11 ]
一、直行程電動執行器詳細介紹
上海湖泉閥門廠研制的直行程電動執行器,在吸取了國內外先進技術的前提下,根據我國工業控制系統特點,設計出的以AC220單相交流電為電源,接受來自 DCS,PLC系統和其他操作器的DC4~20mA,標準信號來控制執行器進行開關閥門或自動調節。電子控制模塊采用先進的混合集成電路,包含完整的保護功能,可現場控制或遠程控制,被設計成匣子形式,并用樹脂澆鑄密封。它被廣泛用于冶金,發電,石化,造紙,輕工 及環保等工業部門。
二、直行程電動執行器主要特點
1、有伺服系統,只需接入DC4~20mA(或DC1~5V)信號和AC220V單相電源即可工作。內設接線端子,接線極為簡單方便。
2、采用先進的混合集成電路,體積小,可靠性高。
3、反饋檢測采用導電塑料電位器,分辨率<0.4%。
4、具有自診斷功能,當出現故障時,控制器上的指示燈會立即發出指示信號。
5、調整工作零點(始點)和行程(終點)簡單易行。
6、延時保護功能,額定負載時,能實行狀態自鎖,故障發生時,能立即起動保護,并可反向運行取消延時保護。
三、直行程電動執行器主要功能
1、斷信號保護功能----當輸入信號小于2mA時,視為斷信號,此時輸出軸按使用者預置的狀態動作。預置方式有三種:a、原位,b、全開,c、全關。
2、過流保護功能----當執行機構過流時本機控制電路自動關閉,執行機構保持原位,以保護執行機構及閥門等。
3、動態電制動功能---當電機運轉至給定值=反饋值時,由于運轉慣性惰走會使輸出軸振蕩。此時,由“軟件"程序發出了一個動態電制動指令,(即給出一個瞬間反向電流)使掃行機構立即停止運轉,無惰走振蕩,極大地提高了自動調節系統的可靠性及穩定性。
4、上限及下限限位功能---根據現場需要,角行程在90度范圍內,基它在額定行程范圍內,上、下限兩端限位隨意可調,可調范圍在40%左右。出廠時,下限位設定為4mA,上限位設定為20mA。
四、直行程電動執行器主要技術參數
項目名稱 |
DKZ標準型(不帶H) |
DKZ戶外型(帶H) |
控制機構 |
輸入信號 |
無 |
反饋信號 |
0—10mAdc 4—20mAdc |
死區 |
0.4%—3% |
0.4%—3% |
基本誤差 |
±2.5% |
±2.5% |
回差 |
≤1.5% |
≤1.5% |
限位 |
開側/閉側 |
開側/閉側 |
開度檢測 |
精密導電塑料電位器 |
精密導電塑料電位器 |
動力 |
動力 |
220V/50Hz |
220V/50Hz |
驅動電機 |
伺服電機 |
伺服電機 |
附屬機構 |
加熱器 |
選擇件 |
選擇件 |
手動機構 |
手輪 |
手輪 |
安裝條件 |
環境溫度 |
無加熱器—25℃~+70℃ |
無加熱器—25℃~+70℃ |
相對濕度 |
<95% |
<95% |
環境氣體 |
無腐蝕性氣體 |
無腐蝕性氣體 |
接線口 |
十四線插頭 |
接線柱 |
防護等級 |
|
IP65 |
五、直行程電動執行器型號規格
型號 |
額定負載 |
額定行程 |
全行程時間 |
額定電流 |
質量 |
(N) |
(mm) |
(S) |
(A) |
(Kg) |
DKZ-310(H) |
4000 |
10 |
8 |
0.65 |
50 |
16 |
125 |
25 |
20 |
30 |
24 |
DKZ-410(H) |
6400 |
18 |
16 |
0.65 |
50 |
30 |
24 |
40 |
32 |
60 |
50 |
DKZ-510(H) |
16000 |
30 |
16 |
1.5 |
95 |
50 |
30 |
60 |
40 |
100 |
60 |
DKZ-610(H) |
25000 |
30 |
16 |
2.5 |
110 |
50 |
30 |
60 |
40 |
100 |
60 |
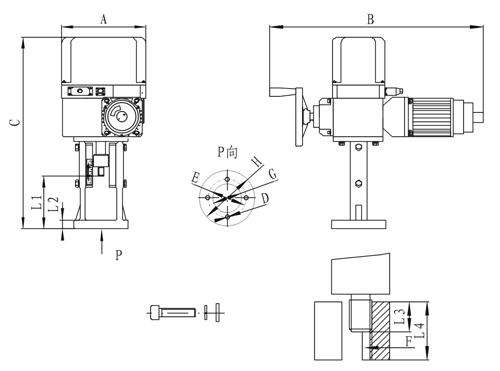
六、直行程電動執行器結構圖

上一篇:部分回轉閥門電動裝置 / 下一篇:閥門電動執行器
閥門資訊
閥門知識
閥門產品